磁力密封裝置
詳細介紹
產品總體概述:
隨著化學工業技術的發展,越來越多的化工裝置都往大型化、連續化目標發展,連續反應裝置為多臺反應器串聯,當其中一臺反應器的攪拌密封部件發生泄漏需要維修時,整條生產線必須立刻停產,擴大了停產損失,所以連續反應裝置的密封可靠性要求更高。 磁力驅動裝置具有密封可靠、操作安全的優點,使用過程中即使發生故障也不會導致反應器內物料的泄漏,給計劃停車爭取了時間,可降低停產損失。
組成結構概述:
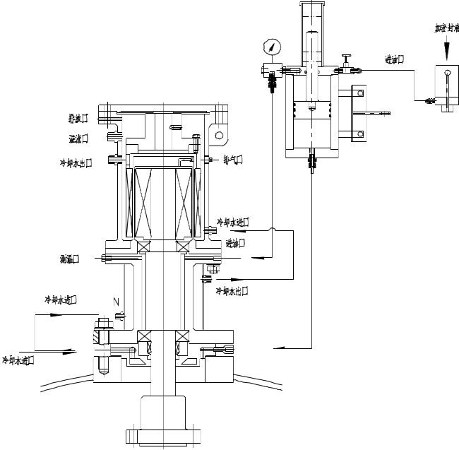
結構組成:有聯軸器、機架、外磁鋼、內磁鋼、隔離套、軸承、機械密封(封閉潤滑油腔)、攪拌軸。
1、磁力驅動裝置的上下軸承座與隔離罩進行一體化設計,縮小隔離罩直徑,提高磁傳動效率,減少發熱量,又使受壓的薄壁隔離罩免受攪拌振動力的影響,提高了薄壁隔離罩的安全性。
2、上軸承降低位置至隔離罩中部,浸沒在潤滑油中,而內磁鋼的一部分設置在潤滑油的液面之上,使潤滑油有自由液面,這樣就避免了內磁鋼轉子總成在潤滑油中旋轉的功率消耗,提高了傳動效率,而且稍許的失油不會影響軸承的潤滑效果。
3、隔離罩內的攪拌軸采用柔性或剛性設計,使下軸承座提升至釜口,易冷卻。
工作原理:
基本原理:磁力驅動系采用磁力耦合原理,即是用永久磁性聯軸器的結構原理代替常用的聯軸器(鋼性,軟性)。使傳動系統在封閉受壓腔內作同步轉動,從而使設備內實現無泄漏操作的壓力容器。由于它以靜密封代替動密封,使傳動體系在靜密封狀態下進行轉動,徹底解決以前填料密封、機械密封無法克服的跑、冒、滴、漏現象。特別是對易燃、易爆、有毒、有害、加氫、氨化、高溫、高壓、高轉速、高真空等系統,更加能顯示出其優越性。
產品優勢:
現在的一體式機械密封和磁力密封的優缺點,緊跟國外先進技術,杭州索孚公司設計制造出具有先進技術特點的磁力密封,已在工業生產中普遍應用,目前設備使用方反饋良好。
主要技術特點:
1、在密封隔離套內的軸承下端設置一套專有技術的機械密封系統,將軸承完全密封在稀油潤滑油腔中,外接特制的壓力平衡、補油系統。
2、良好繼承磁力密封的靜密封的優點,具有可靠的安全性。
3、油腔中軸承得到充分的潤滑,散熱,使用壽命高。
4、油腔中有形成油循環冷卻的小回路,保證內部件無局部發熱過大的問題,避免因局部發熱造成設備損壞。
5、密封系統設計有應對油溫膨脹機構,避免油溫上升腔內壓力升高造成往釜內大量泄露的問題。
6、應對氣液固三相反應所需要的良好的三相接觸面積,索孚公司設計的自吸式磁力密封可以應用于高轉速的工況條件。
7、解決了冷卻、潤滑、油膨脹三項目前市場上磁力密封局限性,杭州索孚公司的磁力密封技術可以應用于大型工業化裝置。
8、設計優良可靠,故障率低。
9、隔絕釜內物料與磁轉子、軸承的接觸,避免內構件受物料的損壞,擁有可靠的設備使用穩定性,
磁力耦合傳動設備工作管路圖:

產品應用工況:
1.硝基化合物氫化還原
2.脂肪氰加氫
3.羰基化
4.碳烷基化
5.硅烷基化
6.氧化
7.其它不飽和鍵加氫
索孚科技公司鄭重承諾,凡購買我公司產品,一年內保修,終生維護。
功能攪拌開啟高效生產,浙江索孚中國攪拌專家,購品質設備,選浙江索孚!
浙江索孚化工設備有限公司專業生產高速分散機、研磨機、乳化機、不銹鋼拉缸,專門配套涂料,染料,顏料,油漆,油墨,膠合劑,樹脂,藥膏,化妝品,造紙,食品,橡塑,復合材料,絕緣材料,磁性材料,其它色漿等化工行業產品的液-固濕法分散、研磨、攪拌、均質、混合、溶解工藝。浙江本土分散機生產廠家,質量有保障,品質看得見, 售后就在您身邊!








